Onder bod:Ericastraat 10, 3333 GS Zwijndrecht - Foto
Onder bod
+36

Ericastraat 10 3333 GS Zwijndrecht € 400.000,- k.k.

  • Eengezinswoning
  • 4 kamers
  • 3 slaapkamers
  • Bouwjaar 1960
  • 167 m² perceeloppervlakte
  • 115 m² gebruiksoppervlakte
  • A Energielabel A

Beschrijving

Sfeervol en energiezuinig middenwoning op een fijne locatie in Zwijndrecht.

Droom je van een charmante eengezinswoning met moderne gemakken op een rustige en geliefde locatie? Deze goed onderhouden tussenwoning combineert karakter met hedendaags wooncomfort en een stijlvol afwerkingsniveau.
De woning is door de jaren heen keurig onderhouden en voorzien van diverse comfortabele extra’s, zoals rolluiken, buitenzonwering en zonnepanelen. Dankzij de goede isolatie, onderhoudsvrije kunststof kozijnen HR++ beglazing, vloerisolatie, 10 zonnepanelen en daarmee energielabel A woon je hier bovendien energiezuinig en comfortabel.

Rustige ligging met alle voorzieningen dichtbij
De woning ligt in een rustige straat, weg van druk stadsverkeer, maar toch centraal ten opzichte van alle dagelijkse voorzieningen. Supermarkten, winkels en andere faciliteiten liggen op korte afstand. Ook het gezellige Winkelcentrum Kort Ambacht bevindt zich vlakbij. Scholen, openbaar vervoer en uitvalswegen zijn goed bereikbaar, waardoor dit een ideale woonplek is.

Begane grond: ruimte en comfort
De woning is gebouwd in 1960 en beschikt over circa 115 m² woonoppervlakte met gelegen op een perceel van 167 m².
Op de begane grond vind je een lichte en ruime woonkamer met een open keuken met een stijlvolle moderne keukenopstelling voorzien van diverse inbouwapparatuur, zoals een 5-pits fornuis met meerdere ovens, een afzuigkap, een vaatwasser, een heet waterkraan, een koelkast en een vriezer. Deze gezellige leefruimte vormt het hart van het huis, een fijne plek om samen te koken, eten en ontspannen.

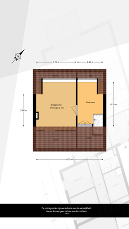
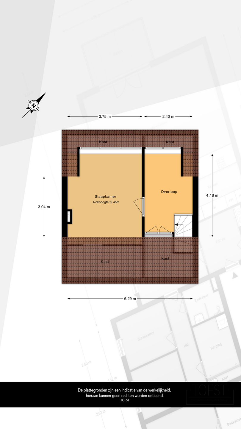
Eerste en tweede verdieping:
Op de eerste en tweede verdieping bevinden zich drie ruime slaapkamers. De badkamer is compleet uitgevoerd met een ligbad, toilet, wastafel en wastafelmeubel. Eerlijk: de badkamer is prima functioneel maar niet helemaal nieuw meer. De badkamer beschikt over een zitbad met douchegelegenheid, een tweede toilet en een wastafel met een badkamermeubel.

De tweede verdieping is vergroot door middel van een dakkapel. Naast een praktische overloop met de C.V.-opstelling en de mogelijkheid voor een handige thuiswerkplek, vind je hier ook de derde slaapkamer.

Genieten van het buitenleven
De woning beschikt over een verzorgde achtertuin op het noordwesten, waar je op zonnige dagen heerlijk kunt genieten van het buitenleven. Daarnaast is er een vrijstaande stenen berging, ideaal voor fietsen en extra opslag. De overkapping is eveneens een heerlijke plek om te ontspannen met vrienden of te genieten van een goed boek tijdens een mooie voorjaarsdag.

Parkeren kan eenvoudig in de openbare parkeergelegenheid voor de woning.

Bijzonderheden
• Energielabel A en voorzien van zonnepanelen
• Kunststof kozijnen met HR++ beglazing
• Rolluiken en buitenzonwering
• Vrijstaande stenen berging van ca. 7 m²
• Ruime woning met 3 slaapkamers
• Perceel van 167 m²

Kortom: een sfeervolle, energiezuinige woning op een fijne plek in Zwijndrecht. Een ideale woning voor wie comfortabel wil wonen met alle voorzieningen binnen handbereik.

Algemene informatie:
NEN2580: de Meetinstructie is gebaseerd op de NEN2580. De Meetinstructie is bedoeld om een eenduidige manier van meten toe te passen voor het geven van een indicatie van de gebruiksoppervlakte. De Meetinstructie sluit verschillen in meetuitkomsten niet volledig uit, door bijvoorbeeld interpretatieverschillen, afrondingen of beperkingen bij het uitvoeren van de meting. Indien er plattegronden aan deze brochure zijn toegevoegd, houdt u er dan rekening mee dat deze plattegronden geven slechts een indicatie van de indeling.

Alle verstrekte informatie moet beschouwd worden als een uitnodiging tot het doen van een bod of om in onderhandeling te treden.

Verkopers behouden zich uitdrukkelijk het recht tot gunning voor. Tussentijdse verkoop voorbehouden. Het uitbrengen van een bod betekent niet automatisch dat u in onderhandeling bent. Bij meerdere serieuze kandidaten kan verkoper besluiten tot een inschrijving.

De koopovereenkomst betreft een standaard-NVM koopovereenkomst met een aantal aanvullende artikelen, zoals:
- ouderdomsclausule (bij woningen ouder dan 20 jaar)
- asbestclausule (bij woningen van voor 1993)
- notarisclausule (maximum aan kosten voor verkoper en tijdsbepaling)
- meetclausule (aansprakelijkheid verkoper en makelaar)
- voorbehoud akkoord hypotheekbank verkoper (indien van toepassing)
- niet-bewonersclausule (indien van toepassing)
- overige clausules voor zover van toepassing

Deze informatie is door ons met de nodige zorgvuldigheid samengesteld. Onzerzijds wordt echter geen enkele aansprakelijkheid aanvaard voor enige onvolledigheid, onjuistheid of anderszins, dan wel de gevolgen daarvan. Alle opgegeven maten en oppervlakten zijn indicatief. Van toepassing zijn de NVM voorwaarden. Voor de NVM-privacyverklaring verwijzen wij u naar onze website.

Kaart

Kenmerken

Overdracht

Prijs
€ 400.000,- k.k.
Status
Onder bod
Aanvaarding
In overleg
Aangeboden sinds
Vrijdag 13 maart 2026
Laatste wijziging
Maandag 20 april 2026

Bouw

Type object
Eengezinswoning, woonhuis, tussenwoning
Soort bouw
Bestaande bouw
Bouwjaar
1960
Dakbedekking
Dakpannen
Type dak
Zadeldak
Isolatievormen
Dakisolatie
Vloerisolatie

Oppervlaktes en inhoud

Perceeloppervlakte
167 m²
Woonoppervlakte
115 m²
Inhoud
389 m³
Oppervlakte externe bergruimte
7 m²

Indeling

Aantal bouwlagen
3
Aantal kamers
4 (waarvan 3 slaapkamers)

Locatie

Ligging
Aan rustige weg
In woonwijk

Tuin

Type
Achtertuin
Hoofdtuin
Ja
Oriëntering
Noord west
Heeft een achterom
Ja
Staat
Normaal
Tuin 2 - Type
Achtertuin
Tuin 2 - Staat
Normaal
Tuin 3 - Type
Voortuin
Tuin 3 - Staat
Normaal

Energieverbruik

Energielabel
A

CV ketel

CV ketel
Intergas Kombi HRE 28/24A
Warmtebron
Gas
Bouwjaar
2020
Combiketel
Ja
Eigendom
Eigendom

Uitrusting

Warm water
CV-ketel
Verwarmingssysteem
Centrale verwarming
Badkamervoorzieningen
Toilet
Wastafel
Wastafelmeubel
Zitbad
Tuin aanwezig
Ja
Heeft rolluiken
Ja
Heeft schuur/berging
Ja
Heeft zonwering
Ja
Heeft zonnecollectoren
Ja
Heeft ventilatie
Ja

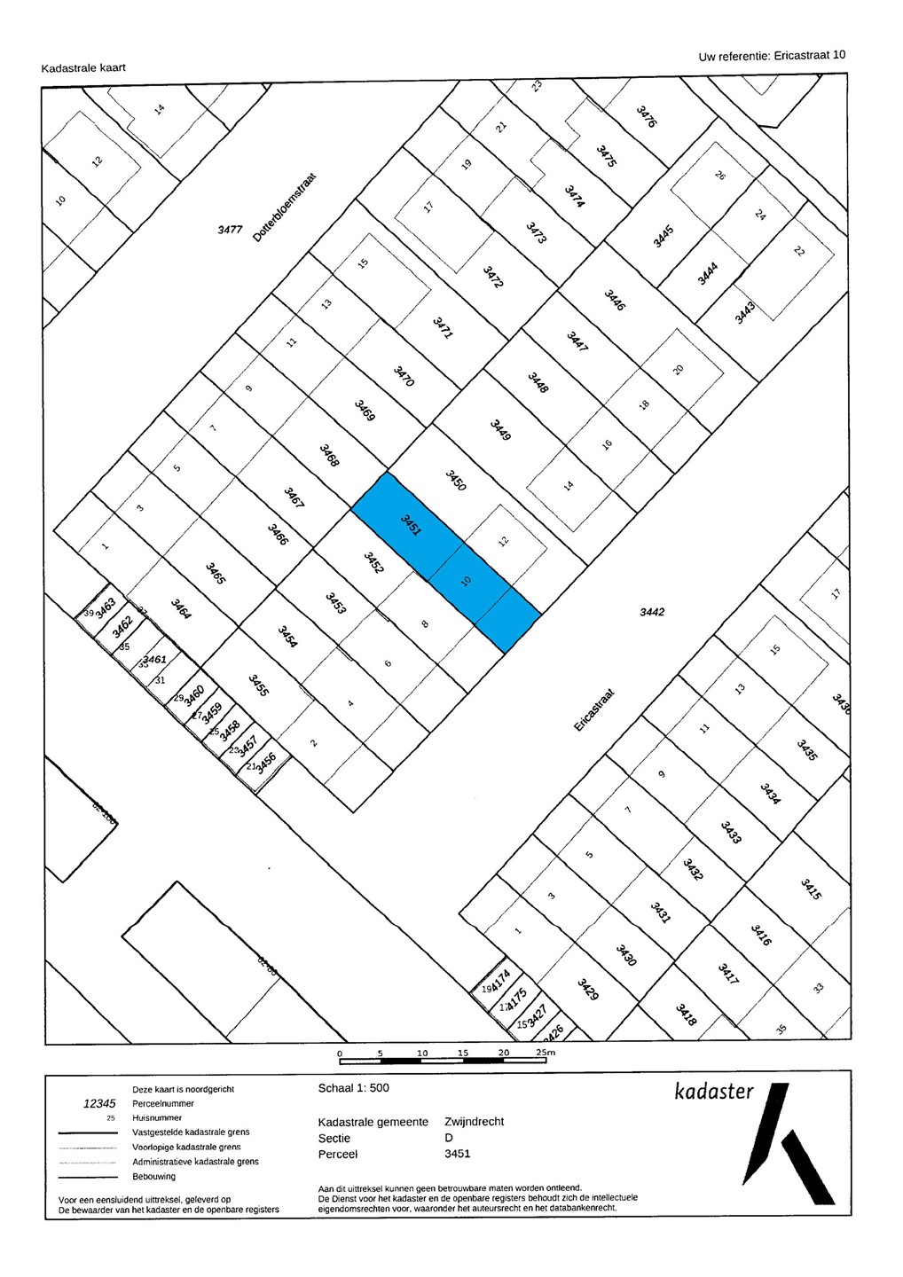
Kadastrale gegevens

Kadastrale aanduiding
Zwijndrecht D 3451
Perceeloppervlakte
167 m²
Omvang
Geheel perceel
Eigendomsituatie
Eigen grond

Brochure(s) en overige bijlagen

brochure Download