Onder bod:Bonairestraat 22, 3333 AD Zwijndrecht - Foto
Onder bod
+36

Bonairestraat 22 3333 AD Zwijndrecht € 419.000,- k.k.

  • Eengezinswoning
  • 6 kamers
  • 5 slaapkamers
  • Bouwjaar 1958
  • 266 m² perceeloppervlakte
  • 125 m² gebruiksoppervlakte
  • C Energielabel C

Beschrijving

Charmant hoekhuis op een fijne locatie in Zwijndrecht.

Op zoek naar een huis met karakter, ruimte én een tuin waar je eindelijk die barbecue neer kunt zetten? Dan is dit sfeervolle hoekhuis precies wat je zoekt! Gelegen in een rustige straat in Zwijndrecht, biedt deze woning vijf slaapkamers – waaronder één op de begane grond – een moderne keuken en zonnepanelen. Ideaal voor iedereen die ruimte en comfort wil combineren.

Ligging en omgeving
De woning ligt in een gezellige en rustige woonwijk. Supermarkten, winkels en een kopje koffie zijn altijd dichtbij, dus je dagelijkse dingen regel je zonder gedoe.

Woningkenmerken
Gebouwd in 1958 en sindsdien goed onderhouden, zowel binnen als buiten. Comfort verzekerd dankzij dakisolatie, dubbele beglazing en deels onderhoudsvrije kunststof kozijnen met HR++ glas.

Indeling
Begane grond:
Binnenkomen via de hal met toilet, meterkast en trapopgang. De sfeervolle woonkamer valt op door het vele licht dankzij de grote raampartijen. De open, moderne keuken uit 2021 is van alle gemakken voorzien: oven, koelkast, vriezer, inductiekookplaat en afzuigkap. Praktisch is de bijkeuken met pantry en witgoedaansluitingen, en de extra slaapkamer (voorheen garage) kan ook perfect als thuiswerkplek dienen.

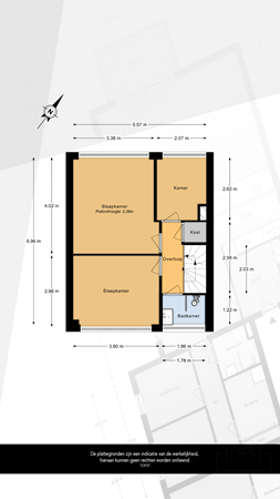
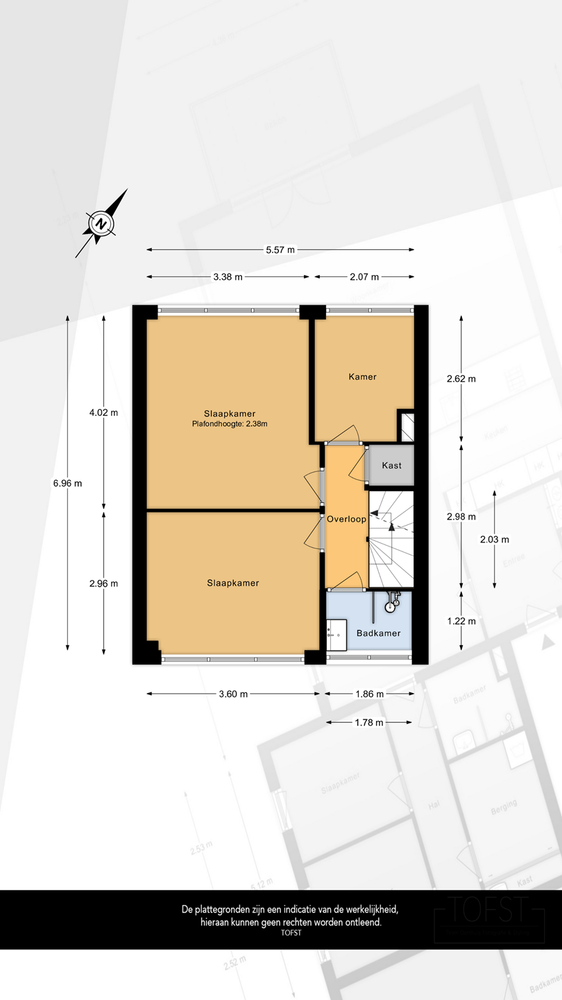
Eerste verdieping:
Hier vind je drie ruime slaapkamers en een modern afgewerkte badkamer met wastafelmeubel en inloopdouche. De grote ramen zorgen ook op deze verdieping voor heerlijk veel licht.

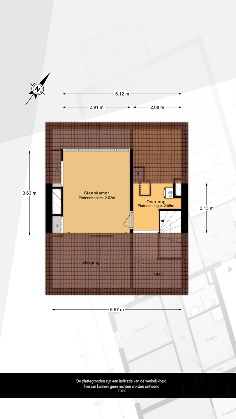
Tweede verdieping:
Een extra slaapkamer én volop ruimte voor spullen, hobby’s of dat fitnessapparaat dat je altijd voornemens was te gebruiken.

Buiten
Voor-, achter- én zijtuin met handige achteringang. Extra opslagruimte? Dat biedt de vrijstaande, metselwerk schuur voor al je gereedschap, fietsen of tuinspullen.

Parkeren
Parkeren is eenvoudig dankzij de aanwezige openbare parkeergelegenheid.

Bijzonderheden
• Vijf slaapkamers, waarvan één op de begane grond
• Lichte en comfortabele woonkamer
• Riante tuin voor lekker veel buitenplezier
• Moderne keuken en sanitair
• Energieklasse C

Kortom: een huis vol karakter, licht en mogelijkheden. Of je nu een gezin hebt, thuiswerkt of gewoon van ruimte houdt om te leven, hier kan het allemaal. Plan een bezichtiging en ontdek zelf waarom dit huis misschien wel jouw nieuwe favoriete plek in Zwijndrecht wordt!

Algemene informatie:
NEN2580: de Meetinstructie is gebaseerd op de NEN2580. De Meetinstructie is bedoeld om een eenduidige manier van meten toe te passen voor het geven van een indicatie van de gebruiksoppervlakte. De Meetinstructie sluit verschillen in meetuitkomsten niet volledig uit, door bijvoorbeeld interpretatieverschillen, afrondingen of beperkingen bij het uitvoeren van de meting. Indien er plattegronden aan deze brochure zijn toegevoegd, houdt u er dan rekening mee dat deze plattegronden geven slechts een indicatie van de indeling.

Alle verstrekte informatie moet beschouwd worden als een uitnodiging tot het doen van een bod of om in onderhandeling te treden.

Verkopers behouden zich uitdrukkelijk het recht tot gunning voor. Tussentijdse verkoop voorbehouden. Het uitbrengen van een bod betekent niet automatisch dat u in onderhandeling bent. Bij meerdere serieuze kandidaten kan verkoper besluiten tot een inschrijving.

De koopovereenkomst betreft een standaard-NVM koopovereenkomst met een aantal aanvullende artikelen, zoals:
- ouderdomsclausule (bij woningen ouder dan 20 jaar)
- asbestclausule (bij woningen van voor 1993)
- notarisclausule (maximum aan kosten voor verkoper en tijdsbepaling)
- meetclausule (aansprakelijkheid verkoper en makelaar)
- voorbehoud akkoord hypotheekbank verkoper (indien van toepassing)
- niet-bewonersclausule (indien van toepassing)
- overige clausules voor zover van toepassing

Deze informatie is door ons met de nodige zorgvuldigheid samengesteld. Onzerzijds wordt echter geen enkele aansprakelijkheid aanvaard voor enige onvolledigheid, onjuistheid of anderszins, dan wel de gevolgen daarvan. Alle opgegeven maten en oppervlakten zijn indicatief. Van toepassing zijn de NVM-voorwaarden. Voor de NVM-privacyverklaring verwijzen wij u naar onze website.

Kaart

Kenmerken

Overdracht

Vraagprijs
€ 419.000,- k.k.
Status
Onder bod
Aanvaarding
In overleg
Aangeboden sinds
Maandag 2 februari 2026
Laatste wijziging
Zaterdag 21 februari 2026

Bouw

Type object
Eengezinswoning, woonhuis, hoekwoning
Soort bouw
Bestaande bouw
Bouwjaar
1958
Dakbedekking
Dakpannen
Type dak
Zadeldak
Isolatievormen
Dakisolatie
Dubbel glas

Oppervlaktes en inhoud

Perceeloppervlakte
266 m²
Woonoppervlakte
125 m²
Inhoud
433 m³
Oppervlakte externe bergruimte
7 m²

Indeling

Aantal bouwlagen
3
Aantal kamers
6 (waarvan 5 slaapkamers)

Locatie

Ligging
Aan rustige weg
In woonwijk

Tuin

Type
Achtertuin
Hoofdtuin
Ja
Oriëntering
Noord west
Heeft een achterom
Ja
Staat
Normaal
Tuin 2 - Type
Achtertuin
Tuin 2 - Staat
Normaal
Tuin 3 - Type
Voortuin
Tuin 3 - Staat
Normaal
Tuin 4 - Type
Zijtuin
Tuin 4 - Staat
Normaal

Energieverbruik

Energielabel
C

CV ketel

CV ketel
Intergas Kombi Kompakt HRE 36/30 A
Warmtebron
Gas
Bouwjaar
2023
Combiketel
Ja
Eigendom
Eigendom

Uitrusting

Warm water
CV-ketel
Verwarmingssysteem
Centrale verwarming
Badkamervoorzieningen
Inloopdouche
Wastafelmeubel
Tuin aanwezig
Ja
Heeft schuur/berging
Ja
Heeft zonwering
Ja
Heeft zonnecollectoren
Ja
Heeft ventilatie
Ja

Kadastrale gegevens

Kadastrale aanduiding
Zwijndrecht C 2908
Perceeloppervlakte
266 m²
Omvang
Geheel perceel
Eigendomsituatie
Eigen grond

Brochure(s) en overige bijlagen

brochure Download