Nieuw in verkoop:Westerdijkstraat 18, 2984 GT Ridderkerk - Foto
Nieuw in verkoop
+40

Westerdijkstraat 18 2984 GT Ridderkerk € 689.000,- k.k.

  • Herenhuis
  • 7 kamers
  • 6 slaapkamers
  • Bouwjaar 2021
  • 154 m² perceeloppervlakte
  • 174 m² gebruiksoppervlakte
  • A+++ Energielabel A+++

Beschrijving

UPDATE: De reacties op deze woning zijn overweldigend: alle geplande bezichtigingsmomenten zitten vol! Wilt u toch kans maken om deze woning te zien? Schrijf u dan in op onze reserverlijst. Wie weet komt er een plekje vrij!

Daarnaast kunt u zich gratis en vrijblijvend aanmelden voor een zoekopdracht. Zo bent u als eerste op de hoogte van nieuw aanbod dat perfect bij u past. Mis geen enkele kans!

174 m² puur woonplezier, zes slaapkamers en energielabel A+++ : dit is zo’n huis dat je hart direct sneller laat kloppen.

Stap binnen in Westerdijkstraat 18 in de populaire wijk 't Nieuwe Zand. Een moderne woning uit 2021 waar ruimte, comfort en duurzaamheid perfect samenkomen. Hier woon je niet alleen royaal, maar ook toekomstgericht en zorgeloos.

Ruimte in overvloed
Met een indrukwekkende woonoppervlakte van 174 m² biedt deze woning alle vrijheid die je maar kunt wensen. En dan hebben we het nog niet eens over de zes slaapkamers gehad. Dat betekent: voor ieder gezinslid een eigen plek; een rustige thuiswerkruimte (of twee); een hobbykamer, sportruimte of walk-in-closet én altijd een logeerkamer paraat. Geen compromissen, geen ruimtegebrek — alleen mogelijkheden.

Duurzaam én comfortabel
Deze woning is volledig geïsoleerd en uitgerust met een moderne warmtepomp, vloerverwarming en zonnepanelen. Het energielabel A+++ onderstreept wat je hier dagelijks ervaart: comfort met lage energielasten.

In de winter geniet je van aangename, gelijkmatige warmte via de vloerverwarming op alle woonlagen. In de zomer blijft het binnen prettig dankzij de hoogwaardige isolatie. Gasloos wonen is hier geen toekomstplan, maar al realiteit.

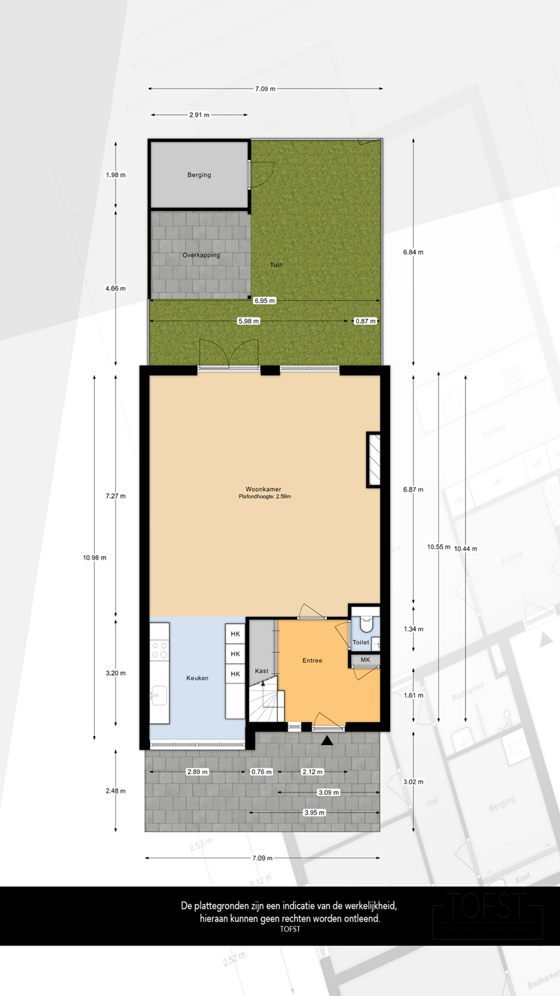
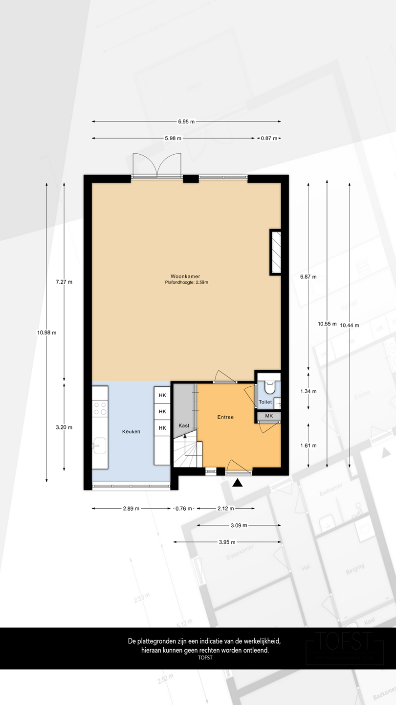
Begane grond: licht en leefkwaliteit
De ruime woonkamer met open keuken vormt het hart van het huis. Grote raampartijen zorgen voor een zee aan daglicht en een fijne verbinding met de tuin. De moderne keuken met inbouwapparatuur is perfect voor zowel snelle doordeweekse diners als lange avonden tafelen met vrienden en familie. Hier leef je samen, zonder elkaar in de weg te lopen.

Verdiepingen met flexibiliteit
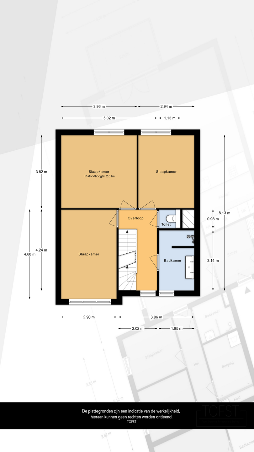
Op de eerste verdieping vind je drie opvallend ruime slaapkamers en een moderne badkamer met dubbele wastafel en inloopdouche. Ideaal voor drukke ochtenden zonder wachttijden. Ook is op deze verdieping een tweede, separaat toilet gesitueerd.

De tweede verdieping biedt nog eens drie kamers en flexibiliteit. Of je nu extra slaapkamers nodig hebt, een kantoor aan huis wilt inrichten of een luxe master suite creëert, de ruimte is er.

Zonnige tuin op het zuiden
De verzorgde achtertuin ligt gunstig op het zuiden, waardoor je hier volop van de zon geniet. Of het nu gaat om een ontspannen ochtendkoffie, een zomerse barbecue of een speelplek voor de kinderen, deze buitenruimte maakt het plaatje compleet. Uiteraard is er ook een berging met een stijlvolle overkapping en een praktische achterom aanwezig.

Wonen in ’t Nieuwe Zand
De woning ligt in een rustige straat in een jonge en gewilde woonwijk. Voorzieningen zoals scholen, winkels, sportfaciliteiten en uitvalswegen zijn dichtbij, terwijl je thuis vooral rust en privacy ervaart. Hier woon je comfortabel, ruim én energiezuinig in een prettige omgeving in Ridderkerk.

Kortom
Een moderne woning met 174 m² woonoppervlakte, zes slaapkamers en een duurzaam karakter dat klaar is voor de toekomst. Dit is geen huis waar je moet passen en meten, dit is een huis dat zich aanpast aan jouw leven.

Algemene informatie:
NEN2580: de Meetinstructie is gebaseerd op de NEN2580. De Meetinstructie is bedoeld om een eenduidige manier van meten toe te passen voor het geven van een indicatie van de gebruiksoppervlakte. De Meetinstructie sluit verschillen in meetuitkomsten niet volledig uit, door bijvoorbeeld interpretatieverschillen, afrondingen of beperkingen bij het uitvoeren van de meting. Indien er plattegronden aan deze brochure zijn toegevoegd, houdt u er dan rekening mee dat deze plattegronden geven slechts een indicatie van de indeling.

Alle verstrekte informatie moet beschouwd worden als een uitnodiging tot het doen van een bod of om in onderhandeling te treden.

Verkopers behouden zich uitdrukkelijk het recht tot gunning voor. Tussentijdse verkoop voorbehouden. Het uitbrengen van een bod betekent niet automatisch dat u in onderhandeling bent. Bij meerdere serieuze kandidaten kan verkoper besluiten tot een inschrijving.

De koopovereenkomst betreft een standaard-NVM koopovereenkomst met een aantal aanvullende artikelen, zoals:
- ouderdomsclausule (bij woningen ouder dan 20 jaar)
- asbestclausule (bij woningen van voor 1993)
- notarisclausule (maximum aan kosten voor verkoper en tijdsbepaling)
- meetclausule (aansprakelijkheid verkoper en makelaar)
- voorbehoud akkoord hypotheekbank verkoper (indien van toepassing)
- niet-bewonersclausule (indien van toepassing)
- overige clausules voor zover van toepassing

Deze informatie is door ons met de nodige zorgvuldigheid samengesteld. Onzerzijds wordt echter geen enkele aansprakelijkheid aanvaard voor enige onvolledigheid, onjuistheid of anderszins, dan wel de gevolgen daarvan. Alle opgegeven maten en oppervlakten zijn indicatief. Van toepassing zijn de NVM voorwaarden. Voor de NVM-privacyverklaring verwijzen wij u naar onze website.

Kaart

Kenmerken

Overdracht

Vraagprijs
€ 689.000,- k.k.
Status
Nieuw in verkoop
Aanvaarding
In overleg
Aangeboden sinds
Woensdag 4 maart 2026

Bouw

Type object
Herenhuis, woonhuis, tussenwoning
Soort bouw
Bestaande bouw
Bouwjaar
2021
Dakbedekking
Dakpannen
Type dak
Zadeldak
Isolatievormen
Volledig geïsoleerd

Oppervlaktes en inhoud

Perceeloppervlakte
154 m²
Woonoppervlakte
174 m²
Inhoud
608 m³
Oppervlakte externe bergruimte
6 m²

Indeling

Aantal bouwlagen
3
Aantal kamers
7 (waarvan 6 slaapkamers)

Locatie

Ligging
Aan rustige weg
In woonwijk

Tuin

Type
Achtertuin
Hoofdtuin
Ja
Oriëntering
Zuiden
Heeft een achterom
Ja
Staat
Goed onderhouden
Tuin 2 - Type
Achtertuin
Tuin 2 - Staat
Goed onderhouden
Tuin 3 - Type
Voortuin
Tuin 3 - Staat
Goed onderhouden

Energieverbruik

Energielabel
A+++

Uitrusting

Verwarmingssysteem
Vloerverwarming
Warmtepomp
Badkamervoorzieningen
Dubbele wastafel
Inloopdouche
Wastafelmeubel
Tuin aanwezig
Ja
Heeft schuur/berging
Ja
Heeft een dakraam
Ja
Heeft zonnecollectoren
Ja
Heeft ventilatie
Ja

Kadastrale gegevens

Kadastrale aanduiding
Ridderkerk B 3105
Perceeloppervlakte
154 m²
Omvang
Geheel perceel
Eigendomsituatie
Eigen grond

Brochure(s) en overige bijlagen

brochure Download