Verkocht:Oranjestraat 12, 2983 HS Ridderkerk - Foto
Verkocht
+34

Oranjestraat 12 2983 HS Ridderkerk

  • Eengezinswoning
  • 5 kamers
  • 4 slaapkamers
  • Bouwjaar 1937
  • 157 m² perceeloppervlakte
  • 97 m² gebruiksoppervlakte
  • D Energielabel D

Beschrijving

In de geliefde en vriendelijke woonwijk Slikkerveer ligt deze charmante en verrassend ruime jaren ’30 tussenwoning. Met vier slaapkamers, een diepe achtertuin en een indeling die opvallend efficiënt oogt, is dit een ideale woonplek voor gezinnen, starters met toekomstplannen of iedereen die droomt van wonen in een gezellige en rustige omgeving. Een woonplek welke door de huidige bewoner de afgelopen 50 jaar met liefde bewoond werd.

Indeling
Je komt binnen via de hal, waar de meterkast en trapopgang zich strategisch hebben gepositioneerd. De L-vormige woonkamer biedt dankzij de grote raampartijen een fijne lichtinval en beschikt over een trapkast — oftewel: de perfecte plek voor voorraad of spullen voor dagelijks gebruik.

Aansluitend vind je de keuken, uitgerust met een goed onderhouden keukenopstelling inclusief inductiekookplaat, combi-oven, koelkast, vriezer en afzuigkap. De elektrisch bedienbare rolluiken zorgen er in de winter voor dat de kou buiten blijft en in de zomer het aangenaam vertoeven is in de keuken. Vanuit de keuken bereik je zowel de badkamer als de achtertuin.

De badkamer is praktisch ingericht en voorzien van: een douchecabine, een toilet, een wastafel met meubel en een wasmachine-aansluiting.

De achtertuin is heerlijk diep, groen, verzorgd en voorzien van een achterom en stenen berging — ideaal voor fietsen, gereedschap of toekomstige tuinexperimenten. Hier geniet je moeiteloos van zonnige dagen, barbecue-avonden of koffie-momentjes met de krant.

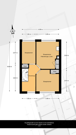
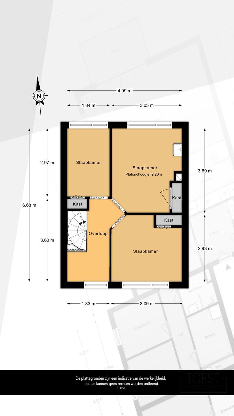
Eerste verdieping
Een ruime overloop biedt plek voor bijvoorbeeld een thuiswerkplek (of een minigym, leeshoek of kledingdomein — keuzes genoeg). Deze verdieping beschikt over drie slaapkamers, waarvan één is voorzien van een wastafelmeubel — praktisch en verrassend handig.

Tweede verdieping
In 1990 is deze verdieping vergroot dankzij een nokverhogende dakopbouw, waardoor er nu een ruime vierde slaapkamer aanwezig is. Op de overloop bevindt zich de cv-installatie (Intergas 2022, eigendom), startklaar voor vele jaren comfortabel en warm wonen.

Locatie — Slikkerveer
Slikkerveer staat bekend als een gezellige, groene en goed bereikbare wijk. Voorzieningen zoals winkels (o.a. Dillenburgplein), scholen, sportvelden en openbaar vervoer bevinden zich binnen handbereik. Bovendien woon je hier rustig, maar sta je toch binnen no-time in Rotterdam of omliggende plaatsen. Parkeren? Gewoon openbaar en dichtbij — want sommige dingen moeten simpel blijven.

Pluspunten in één overzicht
• Bouwjaar 1937, energielabel D
• Verwarming via cv-ketel uit 2022 (eigendom)
• Vier slaapkamers
• Nokverhogende dakopbouw (1990)
• Ruime achtertuin met achterom en stenen berging
• Rolluiken en zonwering aanwezig
• Ligging in de karakteristieke en geliefde wijk Slikkerveer

Deze woning biedt een fijne combinatie van sfeer, ruimte, comfort en ligging — een plek waar je je met gemak thuis voelt.

Algemene informatie
NEN2580: de Meetinstructie is gebaseerd op de NEN2580 en is bedoeld om een eenduidige manier van meten toe te passen voor het geven van een indicatie van de gebruiksoppervlakte. De Meetinstructie sluit verschillen in meetuitkomsten niet volledig uit, bijvoorbeeld door interpretatieverschillen, afrondingen of beperkingen bij het uitvoeren van de meting. Indien er plattegronden aan deze brochure zijn toegevoegd, houdt u er rekening mee dat deze slechts een indicatie geven van de indeling.

Alle verstrekte informatie moet worden beschouwd als een uitnodiging tot het doen van een bod of om in onderhandeling te treden. Verkopers behouden zich uitdrukkelijk het recht tot gunning voor. Tussentijdse verkoop voorbehouden. Het uitbrengen van een bod betekent niet automatisch dat u in onderhandeling bent. Bij meerdere serieuze kandidaten kan de verkoper besluiten tot een inschrijving.

De koopovereenkomst betreft een standaard NVM koopovereenkomst met een aantal aanvullende artikelen, zoals:
• Ouderdomsclausule (bij woningen ouder dan 20 jaar)
• Asbestclausule (bij woningen van voor 1993)
• Notarisclausule (maximum aan kosten voor verkoper en tijdsbepaling)
• Meetclausule (aansprakelijkheid verkoper en makelaar)
• Voorbehoud akkoord hypotheekbank verkoper (indien van toepassing)
• Niet-bewonersclausule (indien van toepassing)
• Overige clausules voor zover van toepassing

Deze informatie is door ons met de nodige zorgvuldigheid samengesteld. Onzerzijds wordt echter geen enkele aansprakelijkheid aanvaard voor enige onvolledigheid, onjuistheid of anderszins, noch de gevolgen daarvan. Alle opgegeven maten en oppervlakten zijn indicatief. Van toepassing zijn de NVM-voorwaarden. Voor de NVM-privacyverklaring verwijzen wij u naar onze website.

Kaart

Kenmerken

Overdracht

Vraagprijs
€ 375.000,- k.k.
Status
Verkocht
Aanvaarding
In overleg
Aangeboden sinds
Donderdag 27 november 2025
Laatste wijziging
Maandag 5 januari 2026

Bouw

Type object
Eengezinswoning, woonhuis, tussenwoning
Soort bouw
Bestaande bouw
Bouwjaar
1937
Dakbedekking
Bitumen
Dakpannen
Type dak
Zadeldak
Isolatievormen
Dakisolatie
Dubbel glas

Oppervlaktes en inhoud

Perceeloppervlakte
157 m²
Woonoppervlakte
97 m²
Inhoud
352 m³
Oppervlakte externe bergruimte
9 m²

Indeling

Aantal bouwlagen
3
Aantal kamers
5 (waarvan 4 slaapkamers)

Locatie

Ligging
In woonwijk

Tuin

Type
Achtertuin
Hoofdtuin
Ja
Oriëntering
Noorden
Heeft een achterom
Ja
Staat
Goed onderhouden
Tuin 2 - Type
Achtertuin
Tuin 2 - Staat
Goed onderhouden
Tuin 3 - Type
Voortuin
Tuin 3 - Staat
Goed onderhouden

Energieverbruik

Energielabel
D

CV ketel

CV ketel
Intergas Kombi Kompakt HRE 28/24A
Warmtebron
Gas
Bouwjaar
2022
Combiketel
Ja
Eigendom
Eigendom

Uitrusting

Warm water
CV-ketel
Verwarmingssysteem
Centrale verwarming
Badkamervoorzieningen
Douche
Toilet
Wastafelmeubel
Tuin aanwezig
Ja
Heeft rolluiken
Ja
Heeft schuur/berging
Ja
Heeft zonwering
Ja
Heeft ventilatie
Ja

Kadastrale gegevens

Kadastrale aanduiding
Ridderkerk A 6830
Perceeloppervlakte
157 m²
Omvang
Geheel perceel
Eigendomsituatie
Eigen grond

Brochure(s) en overige bijlagen

brochure Download