Verkocht onder voorbehoud:Slangenburg 241, 3328 DW Dordrecht - Foto
Verkocht onder voorbehoud
+30

Slangenburg 241 3328 DW Dordrecht € 300.000,- k.k.

  • Appartement
  • 5 kamers
  • 3 slaapkamers
  • Bouwjaar 1980
  • 94 m² gebruiksoppervlakte
  • C Energielabel C

Beschrijving

Slangenburg 241 – een charmante maisonnette in Dordrecht, gelegen aan een rustige straat in de gezellige woonwijk Sterrenburg. Deze maisonnette uit 1980 heeft een woonoppervlak van 94 m² en biedt drie slaapkamers, een ruime woonkamer, een sfeervolle woonkeuken én een royaal dakterras van ruim 10 m².

Waarom deze maisonnette bijzonder is?
Deze maisonnette verkeert in een goede staat van onderhoud en beschikt over mechanische ventilatie, wat bijdraagt aan een gezond binnenklimaat én een gunstig energielabel. De keuken en het sanitair zijn functioneel, met hier en daar ruimte voor modernisering – een uitstekende kans om er uw persoonlijke stijl aan toe te voegen en van deze maisonnette echt uw thuis te maken.

Indeling
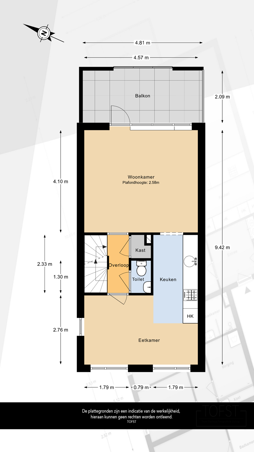
Begane grond:
Entree/hal: hal met toegang tot een praktische berging met witgoedaansluitingen. Ook zijn hier de meterkast en de trapopgang naar de eerste verdieping gesitueerd.

Eerste verdieping/woonlaag 1:
Overloop met een vaste kast met daarin de opstelling voor de mechanische afzuiging; separaat toilet, functioneel en netjes onderhouden. Sfeervolle woonkeuken voorzien van inbouwapparatuur en voldoende werkruimte. Met relatief eenvoudige aanpassingen kan dit een moderne kookruimte worden.

De ruime en lichte woonkamer met grote raampartijen, ideaal voor een gezellige zithoek en eethoek. De open verbinding met de keuken maakt het geheel extra sfeervol en praktisch. Vanuit de woonkamer is er toegang tot een royaal dakterras van ruim 10 m² – een heerlijke plek om te genieten van de zon, een hapje en een drankje of het uitzicht over de omgeving.

Tweede verdieping/woonlaag 2:
Overloop met toegang tot alle vertrekken op deze verdieping, een vlizotrap naar de praktische bergzolder en een vaste kast met daarin de C.V.-opstelling. Drie slaapkamers, geschikt als tweepersoonskamers, studeerkamer of logeerkamer. De praktische indeling maakt elke kamer multifunctioneel. De badkamer is voorzien van ligbad met douchegelegenheid, wastafel en toilet. Functioneel maar eenvoudig, met mogelijkheden voor modernisering naar uw eigen smaak.

Derde verdieping/bergzolder:
De bergzolder heeft een hoogte van 170 cm en beidt daardoor lekker veel praktische en goed bereikbare bergruimte.

Locatie:
Gelegen in een rustige straat in woonwijk Sterrenburg, met supermarkten en een kleinschalig winkelcentrum letterlijk om de hoek én openbaar vervoer en wandelroutes in bijvoorbeeld het Oostkilpark op korte afstand. Hier combineert u rust, comfort en gemak op één adres.

Extra’s
• Energielabel C;
• Remeha Avanta CV-ketel (2006);
• 3 slaapkamers, sfeervolle woonkeuken en een gezellig dakterras;
• Voldoende openbare parkeergelegenheid en een oplaadpaal voor elektrische auto’s

Samengevat
Deze maisonnette biedt een solide basis met volop potentie om er uw eigen thuis van te maken. Met drie slaapkamers, een ruime woonkamer, open woonkeuken en een zonnig dakterras van ruim 10 m² is dit een ideale woning voor starters, alleenstaanden of doorstromers die comfortabel willen wonen in Dordrecht.

Algemene informatie:
NEN2580: de Meetinstructie is gebaseerd op de NEN2580. De Meetinstructie is bedoeld om een eenduidige manier van meten toe te passen voor het geven van een indicatie van de gebruiksoppervlakte. De Meetinstructie sluit verschillen in meetuitkomsten niet volledig uit, door bijvoorbeeld interpretatieverschillen, afrondingen of beperkingen bij het uitvoeren van de meting. Als er plattegronden aan deze brochure zijn toegevoegd, houdt u er dan rekening mee dat deze plattegronden geven slechts een indicatie van de indeling.

Alle verstrekte informatie moet beschouwd worden als een uitnodiging tot het doen van een bod of om in onderhandeling te treden.

Verkopers behouden zich uitdrukkelijk het recht tot gunning voor. Tussentijdse verkoop voorbehouden. Het uitbrengen van een bod betekent niet automatisch dat u in onderhandeling bent. Bij meerdere serieuze kandidaten kan verkoper besluiten tot een inschrijving.

De koopovereenkomst betreft een standaard-NVM koopovereenkomst met een aantal aanvullende artikelen, zoals:
- ouderdomsclausule (bij woningen ouder dan 20 jaar)
- asbestclausule (bij woningen van voor 1993)
- notarisclausule (maximum aan kosten voor verkoper en tijdsbepaling)
- meetclausule (aansprakelijkheid verkoper en makelaar)
- voorbehoud akkoord hypotheekbank verkoper (indien van toepassing)
- niet-bewonersclausule (indien van toepassing)
- overige clausules voor zover van toepassing

Deze informatie is door ons met de nodige zorgvuldigheid samengesteld. Onzerzijds wordt echter geen enkele aansprakelijkheid aanvaard voor enige onvolledigheid, onjuistheid of anderszins, dan wel de gevolgen daarvan. Alle opgegeven maten en oppervlakten zijn indicatief. Van toepassing zijn de NVM-voorwaarden. Voor de NVM-privacyverklaring verwijzen wij u naar onze website.

Kaart

Kenmerken

Overdracht

Vraagprijs
€ 300.000,- k.k.
Servicekosten
€ 162,-
Status
Verkocht onder voorbehoud
Aanvaarding
In overleg
Aangeboden sinds
Donderdag 22 januari 2026
Laatste wijziging
Donderdag 26 februari 2026

Bouw

Type object
Appartement, maisonnette
Woonlaag
1e woonlaag
Soort bouw
Bestaande bouw
Bouwjaar
1980
Dakbedekking
Dakpannen
Type dak
Zadeldak
Isolatievormen
Dakisolatie
Gedeeltelijk dubbel glas
Muurisolatie

Oppervlaktes en inhoud

Woonoppervlakte
94 m²
Inhoud
316 m³
Oppervlakte overige inpandige ruimten
3 m²
Oppervlakte externe bergruimte
7 m²
Oppervlakte gebouwgebonden buitenruimte
10 m²

Indeling

Aantal bouwlagen
4
Aantal kamers
5 (waarvan 3 slaapkamers)

Locatie

Ligging
Aan rustige weg
In woonwijk

Energieverbruik

Energielabel
C

CV ketel

CV ketel
Remeha Avanta
Warmtebron
Gas
Bouwjaar
2006
Combiketel
Ja
Eigendom
Eigendom

Uitrusting

Warm water
CV-ketel
Verwarmingssysteem
Centrale verwarming
Badkamervoorzieningen
Ligbad
Toilet
Wastafel
Heeft schuur/berging
Ja
Heeft ventilatie
Ja

Vereniging van Eigenaren

Ingeschreven bij de KvK
Ja
Jaarlijkse vergadering
Ja
Periodieke bijdrage
Ja
Reservefonds
Ja
Onderhoudsverwachting
Ja
Opstal verzekering
Ja

Kadastrale gegevens

Kadastrale aanduiding
Dordrecht Q 4364
Omvang
Appartementsrecht of complex
Eigendomsituatie
Eigen grond

Brochure(s) en overige bijlagen

brochure Download