Verkocht:Admiraal Trompstraat 31, 3333 TE Zwijndrecht - Foto
Verkocht
+24

Admiraal Trompstraat 31 3333 TE Zwijndrecht

  • Appartement
  • 4 kamers
  • 3 slaapkamers
  • Bouwjaar 1960
  • 65 m² gebruiksoppervlakte
  • G Energielabel G

Beschrijving

UPDATE: IN VERBAND MET HET GROTE AANTAL BEZICHTIGINGEN VAN DEZE WONING, IS HET HELAAS NIET MEER MOGELIJK OM EEN BEZICHTIGING IN TE PLANNEN VOOR DEZE WONING. UITERAARD IS HET WEL MOGELIJK OM UW GEGEVENS OP ONZE RESERVELIJST TE NOTEREN. OF VRAAG NAAR ONZE GRATIS ZOEKMOGELIJKHEDEN.

Centraal in Zwijndrecht, op steenworp afstand van het NS-station en enkele winkelcentra, op de bovenste woonlaag van dit appartementencomplex, ligt dit verzorgde 4 kamer appartement met een balkon, een privé berging en 3 slaapkamers. De servicekosten bedragen ca. € 130 per maand.

Dit appartement ligt op steenworp afstand van diverse winkelcentra – ideaal voor de dagelijkse boodschappen of een middagje shoppen. Ook het NS-station Zwijndrecht is op loopafstand, waardoor je binnen no time in Dordrecht of Rotterdam bent. Daarnaast ben je via de nabijgelegen uitvalswegen zo op de A16 of N3. Kortom: een perfecte mix van rust en bereikbaarheid.

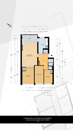
Indeling:
Centrale entree / hal met toegang tot de bergingen en de trapopgang naar de appartementen.

Indeling appartement:
Hal met de meterkast, het toilet en toegang tot vrijwel alle vertrekken. Semi-open keuken met een degelijke keukenopstelling compleet met inbouwapparatuur. Vanuit de keuken is het balkon bereikbaar.

Vanuit de hal zijn de badkamer en het separate toilet bereikbaar. De badkamer is voorzien van een douchehoek en een wastafel. De vaste kast in de hal is voorzien van een witgoedaansluiting en de opstelplaats voor de boiler (huur, ca. € 13,00 per maand).

Sfeervolle woonkamer met een prettige lichtinval en een leuk, vrij uitzicht. Ook vanuit de woonkamer is het balkon bereikbaar.

Aan de achterzijde van het appartement zijn de drie slaapkamers gerealiseerd. Het aantal slaapkamers is ideaal voor gezinnen, thuiswerkers of hobbyliefhebbers. Twee slaapkamers zijn voorzien van een praktische vaste kast.

Bijzonderheden:
- Centrale ligging in Zwijndrecht, nabij NS station en diverse winkelcentra;
- 3 slaapkamers, eventueel is een slaapkamer bij de woonkamer te voegen voor nog meer woongenot;
- verwarming door middel van een gaskachel, warm water door middel van een boiler (huur);
- deels voorzien van onderhoudsvrije kunststof kozijnen;
- woonoppervlakte: ca. 65 m2.
- oplevering: in overleg, kan spoedig.

Algemene informatie:
NEN2580: de Meetinstructie is gebaseerd op de NEN2580. De Meetinstructie is bedoeld om een meer eenduidige manier van meten toe te passen voor het geven van een indicatie van de gebruiksoppervlakte. De Meetinstructie sluit verschillen in meetuitkomsten niet volledig uit, door bijvoorbeeld interpretatieverschillen, afrondingen of beperkingen bij het uitvoeren van de meting. Indien er plattegronden aan deze brochure zijn toegevoegd, houdt u er dan rekening mee dat deze plattegronden slechts een indicatie geven van de indeling.

Alle verstrekte informatie moet beschouwd worden als een uitnodiging tot het doen van een bod of om in onderhandeling te treden.

Verkopers behouden zich uitdrukkelijk het recht tot gunning voor. Tussentijdse verkoop voorbehouden. Het uitbrengen van een bod betekent niet automatisch dat u in onderhandeling bent. Bij meerdere serieuze kandidaten kan verkoper besluiten tot een inschrijving.

De koopovereenkomst betreft een standaard-NVM koopovereenkomst met een aantal aanvullende artikelen, zoals:
- ouderdomsclausule (bij woningen ouder dan 20 jaar)
- asbestclausule (bij woningen van voor 1993)
- notarisclausule (maximum aan kosten voor verkoper en tijdsbepaling)
- meetclausule (aansprakelijkheid verkoper en makelaar)
- voorbehoud akkoord hypotheekbank verkoper (indien van toepassing)
- niet-bewonersclausule (indien van toepassing)
- overige clausules voor zover van toepassing

Deze informatie is door ons met de nodige zorgvuldigheid samengesteld. Onzerzijds wordt echter geen enkele aansprakelijkheid aanvaard voor enige onvolledigheid, onjuistheid of anderszins, dan wel de gevolgen daarvan. Alle opgegeven maten en oppervlakten zijn indicatief. Van toepassing zijn de NVM voorwaarden. Voor de NVM-privacyverklaring verwijzen wij u naar onze website.

Kaart

Kenmerken

Overdracht

Vraagprijs
€ 209.000,- k.k.
Servicekosten
€ 130,-
Status
Verkocht
Aanvaarding
In overleg
Aangeboden sinds
Zaterdag 14 juni 2025
Laatste wijziging
Maandag 28 juli 2025

Bouw

Type object
Appartement, portiekflat
Woonlaag
5e woonlaag
Soort bouw
Bestaande bouw
Bouwjaar
1960
Dakbedekking
Bitumen
Type dak
Platdak

Oppervlaktes en inhoud

Woonoppervlakte
65 m²
Inhoud
212 m³
Oppervlakte externe bergruimte
8 m²
Oppervlakte gebouwgebonden buitenruimte
6 m²

Indeling

Aantal bouwlagen
1
Aantal kamers
4 (waarvan 3 slaapkamers)

Locatie

Ligging
Aan rustige weg
In woonwijk

Energieverbruik

Energielabel
G

Uitrusting

Warm water
Elektrische boiler
Verwarmingssysteem
Gaskachels
Badkamervoorzieningen
Douche
Wastafel
Heeft een balkon
Ja
Heeft schuur/berging
Ja
Heeft ventilatie
Ja

Vereniging van Eigenaren

Ingeschreven bij de KvK
Ja
Jaarlijkse vergadering
Ja
Periodieke bijdrage
Ja
Reservefonds
Ja
Onderhoudsverwachting
Ja
Opstal verzekering
Ja

Kadastrale gegevens

Kadastrale aanduiding
Zwijndrecht D 5621
Omvang
Appartementsrecht of complex
Eigendomsituatie
Eigen grond

Brochure(s) en overige bijlagen

brochure Download