Verkocht:Millinxstraat 96B, 3081 PS Rotterdam - Foto
Verkocht
+18

Millinxstraat 96B 3081 PS Rotterdam

  • Appartement
  • 2 kamers
  • 1 slaapkamer(s)
  • Bouwjaar 1931
  • 48 m² gebruiksoppervlakte
  • A Energielabel A

Beschrijving

UPDATE: IN VERBAND MET HET GROTE AANTAL BEZICHTIGINGEN VAN DEZE WONING, IS HET HELAAS NIET MEER MOGELIJK OM EEN BEZICHTIGING IN TE PLANNEN VOOR DEZE WONING. UITERAARD IS HET WEL MOGELIJK OM UW GEGEVENS OP ONZE RESERVELIJST TE NOTEREN. OF VRAAG NAAR ONZE GRATIS ZOEKMOGELIJKHEDEN.

Welkom bij jouw toekomstige thuis: een charmant begane grond appartement gevestigd in het dynamische Rotterdam. Compact, comfortabel, met een tuin én een centrale ligging: alles wat je nodig hebt is binnen handbereik, én de bruisende stad is letterlijk om de hoek. Ook aan de energiezuinigheid is gedacht, dit appartement is trotse bezitter van een energielabel A.

De Millinxstraat ligt centraal in Rotterdam-Zuid, een wijk volop in ontwikkeling met een energieke mix van winkels, cultuur en horeca. Op loopafstand vind je supermarkten, OV-haltes en gezellige eettentjes. Binnen enkele minuten fiets je naar het centrum of naar het hippe Katendrecht. Ook het Zuiderpark ligt dichtbij voor de dagelijkse wandeling of je workout in het groen.

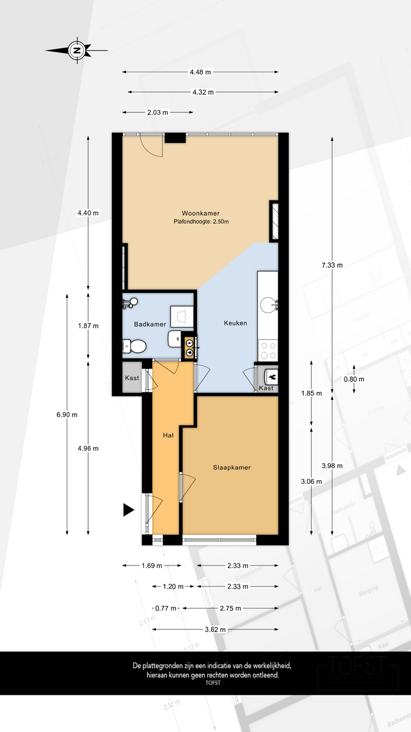
Indeling:
Entree, hal met een praktische bergkast en de meterkast. Ook is hier de installatie voor de mechanische afzuiging gesitueerd. Vanuit de hal zijn de badkamer, de slaapkamer en de woonkamer / keuken bereikbaar.

De slaapkamer is gelegen aan de voorzijde van het appartement. De badkamer is eenvoudig en in een prima conditie, voorzien van een douchegelegenheid, een wastafel, een radiator en een wasmachine aansluiting.

De keuken is functioneel en beschikt over een vaste kast met daarin de C.V.-opstelling. De woonkamer is praktisch ingericht en grenst direct aan de tuin, ideaal voor zomerse avonden of even buiten koffie drinken.

Tuin:
De tuin is gelegen op het oosten en is echt een verrassing: heerlijk privé en een verlengstuk van je woonruimte.

Ondererfpacht:
De ondergrond en tuin van dit appartement zijn belast met een (onder)erfpacht constructie. Dit houdt in dat de grond van het appartement geen eigendom wordt van de koper. De koper betaald over het gebruik van de grond een vergoeding, deze vergoeding ofwel canon, is tot en met 31 augustus 2052 afgekocht. De (onder)erfpacht eindigt op 31 augustus 2101.

Ook is het goed om te weten dat er een zelfbewoningsplicht geldt voor dit appartement. Koper is daarmee verplicht het appartement daadwerkelijk zelf als hoofdbewoner te bewonen, koper mag het appartement niet geheel of niet gedeeltelijk verhuren of anderszins in gebruik afstaan.

Bijzonderheden:
- Bouwjaar: 1931. Woonoppervlakte: ca. 48 m2. Energielabel: A;
- Servicekosten per maand: ca. € 64,00;
- Grotendeels voorzien van kunststof kozijnen met HR glas;
- Zelfbewoningsplicht van toepassing;
- Parkeren door middel van een parkeervergunning.
- Erfpacht afgekocht tot en met 2052.
- Oplevering: in overleg.

Algemene informatie:
NEN2580: de Meetinstructie is gebaseerd op de NEN2580. De Meetinstructie is bedoeld om een meer eenduidige manier van meten toe te passen voor het geven van een indicatie van de gebruiksoppervlakte. De Meetinstructie sluit verschillen in meetuitkomsten niet volledig uit, door bijvoorbeeld interpretatieverschillen, afrondingen of beperkingen bij het uitvoeren van de meting. Indien er plattegronden aan deze brochure zijn toegevoegd, houdt u er dan rekening mee dat deze plattegronden slechts een indicatie geven van de indeling.

Alle verstrekte informatie moet beschouwd worden als een uitnodiging tot het doen van een bod of om in onderhandeling te treden.

Verkopers behouden zich uitdrukkelijk het recht tot gunning voor. Tussentijdse verkoop voorbehouden. Het uitbrengen van een bod betekent niet automatisch dat u in onderhandeling bent. Bij meerdere serieuze kandidaten kan verkoper besluiten tot een inschrijving.

De koopovereenkomst betreft een standaard-NVM koopovereenkomst met een aantal aanvullende artikelen, zoals:
- ouderdomsclausule (bij woningen ouder dan 20 jaar)
- asbestclausule (bij woningen van voor 1993)
- notarisclausule (maximum aan kosten voor verkoper en tijdsbepaling)
- meetclausule (aansprakelijkheid verkoper en makelaar)
- voorbehoud akkoord hypotheekbank verkoper (indien van toepassing)
- niet-bewonersclausule (indien van toepassing)
- overige clausules voor zover van toepassing

Deze informatie is door ons met de nodige zorgvuldigheid samengesteld. Onzerzijds wordt echter geen enkele aansprakelijkheid aanvaard voor enige onvolledigheid, onjuistheid of anderszins, dan wel de gevolgen daarvan. Alle opgegeven maten en oppervlakten zijn indicatief. Van toepassing zijn de NVM voorwaarden. Voor de NVM-privacyverklaring verwijzen wij u naar onze website.

Kaart

Kenmerken

Overdracht

Vraagprijs
€ 185.000,- k.k.
Servicekosten
€ 64,-
Status
Verkocht
Aanvaarding
In overleg
Aangeboden sinds
Woensdag 4 juni 2025
Laatste wijziging
Maandag 28 juli 2025

Bouw

Type object
Appartement, benedenwoning
Woonlaag
1e woonlaag
Soort bouw
Bestaande bouw
Bouwjaar
1931
Dakbedekking
Dakpannen
Type dak
Dwarskap
Isolatievormen
Dakisolatie
Muurisolatie
Vloerisolatie

Oppervlaktes en inhoud

Woonoppervlakte
48 m²
Inhoud
154 m³
Oppervlakte externe bergruimte
5 m²

Indeling

Aantal bouwlagen
1
Aantal kamers
2 (waarvan 1 slaapkamer)

Locatie

Ligging
Aan rustige weg
In woonwijk

Tuin

Type
Achtertuin
Hoofdtuin
Ja
Oriëntering
Oosten
Staat
Normaal
Tuin 2 - Type
Achtertuin
Tuin 2 - Staat
Normaal

Energieverbruik

Energielabel
A

CV ketel

CV ketel
Remeha Avanta 28C
Warmtebron
Gas
Bouwjaar
2021
Combiketel
Ja
Eigendom
Eigendom

Uitrusting

Warm water
CV-ketel
Verwarmingssysteem
Centrale verwarming
Badkamervoorzieningen
Douche
Toilet
Wastafel
Tuin aanwezig
Ja
Heeft schuur/berging
Ja
Heeft ventilatie
Ja

Vereniging van Eigenaren

Ingeschreven bij de KvK
Ja
Jaarlijkse vergadering
Ja
Periodieke bijdrage
Ja
Reservefonds
Ja
Onderhoudsverwachting
Ja
Opstal verzekering
Ja

Kadastrale gegevens

Kadastrale aanduiding
Charlois G 4345
Omvang
Appartementsrecht of complex
Eigendomsituatie
Onder erfpacht

Media

Plattegronden

Brochure(s) en overige bijlagen

brochure Download