Onder bod:Seringenplantsoen 169, 2982 BK Ridderkerk - Foto
Onder bod
+28

Seringenplantsoen 169 2982 BK Ridderkerk € 300.000,- k.k.

  • Appartement
  • 3 kamers
  • 2 slaapkamers
  • Bouwjaar 1973
  • 89 m² gebruiksoppervlakte
  • E Energielabel E

Beschrijving

Op een prachtige locatie in Ridderkerk, aan het groene en ruim opgezette Seringenplantsoen, bevindt zich dit keurig onderhouden 3 kamer appartement op de 10e (bovenste) verdieping. Vanuit vrijwel alle vertrekken heeft u een adembenemend uitzicht over de omgeving. Geniet van het gemak van het wonen in een appartementencomplex met twee liften en een privé berging.

Dit appartement is ideaal voor wie comfortabel en zorgeloos wil wonen, op een gunstige locatie en met voorzieningen zoals uitvalswegen en enkele wijkwinkelcentra binnen handbereik. Het appartement is aan de achterzijde voorzien van kunststof kozijnen.

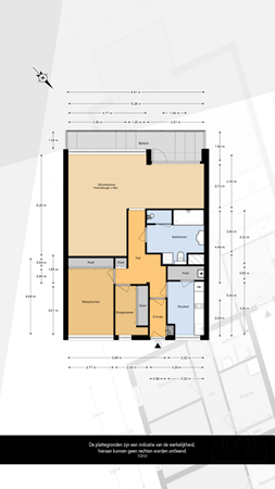
Indeling:
Centrale entree met de centrale hal, de brievenbussen, toegang tot de privé bergingen, de trapopgangen en twee liften. Een video intercomsysteem staat garant voor een stukje veiligheid.

Indeling appartement:
Via de bovenste galerij is het appartement bereikbaar. Het appartement ligt links boven in de hoek van dit indrukwekkende appartementencomplex.

Entree, hal met toegang tot vrijwel alle vertrekken. Rechts, naast de entree, is de keuken gesitueerd, voorzien van een nette keukenopstelling met diverse apparatuur. Vanuit de keuken is de praktische berging bereikbaar met daar de opstelplaats voor de warmwater boiler.

De riante badkamer is vergroot en is voorzien van een inloopdouche, een ligbad, een wastafel met een badkamermeubel, een toilet en een wasmachine aansluiting.

Aan de achterzijde is de riante woonkamer gesitueerd, eveneens met een fabelachtig uitzicht. De achterzijde van het appartement is voorzien van kunststof kozijnen en de woonkamer is nog groter gemaakt door het samen voegen van een slaapkamer bij de woonkamer.

Het balkon aan de achterzijde is eveneens vanuit de woonkamer bereikbaar en ligt op het zuidwesten. Hier geniet u van alle rust en de zon, met voldoende ruimte voor een zitje of een kleine tuinset.

Aan de voorzijde zijn twee slaapkamers gesitueerd, beide met een praktische inbouwkast. Zowel de woonkamer als de grote slaapkamer zijn voorzien van airco, welke zorgt voor een aangenaam binnenklimaat, ook op warme dagen.

Met zowel goed binnen als buiten onderhoud, heeft dit appartement veel te bieden. Het appartementencomplex is gebouwd in 1973 en heeft onder andere gevelisolatie en is grotendeels voorzien van dubbele beglazing.

Het appartement is goed bereikbaar voor senioren en minder validen, waardoor het een ideaal appartement is voor een breed publiek. Parkeerruimte is er voldoende rondom het appartementencomplex. Kosteloos en gemakkelijk parkeren dicht bij uw appartement. De servicekosten bedragen totaal € 220,00 per maand, inclusief € 45,00 voorschot stookkosten.

Algemene informatie:
NEN2580: de Meetinstructie is gebaseerd op de NEN2580. De Meetinstructie is bedoeld om een meer eenduidige manier van meten toe te passen voor het geven van een indicatie van de gebruiksoppervlakte. De Meetinstructie sluit verschillen in meetuitkomsten niet volledig uit, door bijvoorbeeld interpretatieverschillen, afrondingen of beperkingen bij het uitvoeren van de meting. Indien er plattegronden aan deze brochure zijn toegevoegd, houdt u er dan rekening mee dat deze plattegronden slechts een indicatie geven van de indeling.

Alle verstrekte informatie moet beschouwd worden als een uitnodiging tot het doen van een bod of om in onderhandeling te treden.

Verkopers behouden zich uitdrukkelijk het recht tot gunning voor. Tussentijdse verkoop voorbehouden. Het uitbrengen van een bod betekent niet automatisch dat u in onderhandeling bent. Bij meerdere serieuze kandidaten kan verkoper besluiten tot een inschrijving.

De koopovereenkomst betreft een standaard-NVM koopovereenkomst met een aantal aanvullende artikelen, zoals:
- ouderdomsclausule (bij woningen ouder dan 20 jaar)
- asbestclausule (bij woningen van voor 1993)
- notarisclausule (maximum aan kosten voor verkoper en tijdsbepaling)
- meetclausule (aansprakelijkheid verkoper en makelaar)
- voorbehoud akkoord hypotheekbank verkoper (indien van toepassing)
- niet-bewonersclausule (indien van toepassing)
- overige clausules voor zover van toepassing

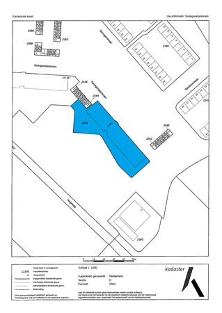
Kaart

Kenmerken

Overdracht

Vraagprijs
€ 300.000,- k.k.
Servicekosten
€ 220,-
Status
Onder bod
Aanvaarding
In overleg
Aangeboden sinds
Vrijdag 22 augustus 2025
Laatste wijziging
Donderdag 4 september 2025

Bouw

Type object
Appartement, galerijflat
Woonlaag
10e woonlaag
Soort bouw
Bestaande bouw
Bouwjaar
1973
Dakbedekking
Bitumen
Type dak
Platdak
Isolatievormen
Muurisolatie

Oppervlaktes en inhoud

Woonoppervlakte
89 m²
Inhoud
278 m³
Oppervlakte externe bergruimte
5 m²
Oppervlakte gebouwgebonden buitenruimte
11 m²

Indeling

Aantal bouwlagen
1
Aantal kamers
3 (waarvan 2 slaapkamers)

Locatie

Ligging
Aan rustige weg
In woonwijk
Vrij uitzicht

Energieverbruik

Energielabel
E

Uitrusting

Warm water
Elektrische boiler
Verwarmingssysteem
Blokverwarming
Badkamervoorzieningen
Inloopdouche
Ligbad
Toilet
Wastafel
Wastafelmeubel
Heeft airco
Ja
Heeft een balkon
Ja
Heeft een lift
Ja
Heeft schuur/berging
Ja

Vereniging van Eigenaren

Ingeschreven bij de KvK
Ja
Jaarlijkse vergadering
Ja
Periodieke bijdrage
Ja
Reservefonds
Ja
Onderhoudsverwachting
Ja
Opstal verzekering
Ja

Kadastrale gegevens

Kadastrale aanduiding
Ridderkerk D 2330
Omvang
Appartementsrecht of complex
Eigendomsituatie
Eigen grond

Brochure(s) en overige bijlagen

brochure Download