Verkocht:Warmoeziershof 26, 3342 XP Hendrik-Ido-Ambacht - Foto
Verkocht
+31

Warmoeziershof 26 3342 XP Hendrik-Ido-Ambacht

  • Eengezinswoning
  • 5 kamers
  • 4 slaapkamers
  • Bouwjaar 1960
  • 129 m² perceeloppervlakte
  • 97 m² gebruiksoppervlakte
  • B Energielabel B

Beschrijving

UPDATE: IN VERBAND MET HET GROTE AANTAL BEZICHTIGINGEN VAN DEZE WONING, IS HET HELAAS NIET MEER MOGELIJK OM EEN BEZICHTIGING IN TE PLANNEN VOOR DEZE WONING. UITERAARD IS HET WEL MOGELIJK OM UW GEGEVENS OP ONZE RESERVELIJST TE NOTEREN. OF VRAAG NAAR ONZE GRATIS ZOEKMOGELIJKHEDEN.

Centraal in Hendrik-Ido-Ambacht ligt deze smaakvol afgewerkte woning welke alles biedt wat je nodig hebt voor comfortabel en zorgeloos wonen. De moderne keuken, de praktische badkamer en een sfeervolle woonkamer vormen samen een harmonieus geheel. Met meerdere slaapkamers is er ruimte genoeg voor een gezin, een thuiskantoor of hobbyruimte. Welkom aan Warmoeziershof 26.

Indeling:
Entree, hal met een praktische bergkast / garderobekast, het toilet en de trapopgang naar de eerste verdieping. Sfeervolle woonkamer met een houtkachel (eventueel aan te sluiten op de C.V.-ketel) en met aan de voorzijde een erker. Open keuken met een moderne keukenopstelling, compleet met inbouwapparatuur waaronder een vaatwasser, een combi oven, een koelkast en een 4-pits kookplaat met een afzuigkap. Vanuit de keuken is de zonnige tuin bereikbaar. Vrijwel de gehele begane grondvloer is afgewerkt met een visgraat laminaatvloer.

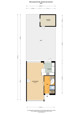
Tuin:
De zonnige tuin is gelegen op het zuiden en beschikt over een vrijstaande, stenen berging en een achterom.

1e verdieping:
Overloop; 3 slaapkamers waarvan de slaapkamer aan de voorzijde toegang geeft tot het balkon. Badkamer met een ligbad (whirlpool), een tweede toilet en een wastafel met een badkamermeubel.

2e verdieping:
Overloop met de C.V.-opstelling en witgoedaansluitingen. Ook is hier extra bergruimte aanwezig. Deze verdieping is vergroot door middel van een nokverhogende dakopbouw en aan de voorzijde een dakkapel. De 4e slaapkamer is eveneens voorzien van bergruimte.

Bijzonderheden:
- Energielabel B, onder andere door 8 zonnepanelen en vloerisolatie;
- De woning is vrijwel geheel voorzien van onderhoudsvrije kunststof kozijnen met uitzondering van het toilet en het dakraam;
- Grotendeels voorzien van HR++ en HR+ beglazing, alleen het toiletraam is van enkel glas;
- Rolluiken en zonwering aanwezig;
- Gelegen in een rustige en vriendelijke buurt, op loopafstand van voorzieningen;
- Zonnige tuin op het zuiden;
- Maximaal wooncomfort door nokverhogende dakopbouw en dakkapel.

Algemene informatie:
NEN2580: de Meetinstructie is gebaseerd op de NEN2580. De Meetinstructie is bedoeld om een meer eenduidige manier van meten toe te passen voor het geven van een indicatie van de gebruiksoppervlakte. De Meetinstructie sluit verschillen in meetuitkomsten niet volledig uit, door bijvoorbeeld interpretatieverschillen, afrondingen of beperkingen bij het uitvoeren van de meting. Indien er plattegronden aan deze brochure zijn toegevoegd, houdt u er dan rekening mee dat deze plattegronden slechts een indicatie geven van de indeling.

Deze informatie is door ons met de nodige zorgvuldigheid samengesteld. Onzerzijds wordt echter geen enkele aansprakelijkheid aanvaard voor enige onvolledigheid, onjuistheid of anderszins, dan wel de gevolgen daarvan. Alle opgegeven maten en oppervlakten zijn indicatief. Van toepassing zijn de NVM voorwaarden. Voor de NVM-privacyverklaring verwijzen wij u naar onze website.

Alle verstrekte informatie moet beschouwd worden als een uitnodiging tot het doen van een bod of om in onderhandeling te treden.

Verkopers behouden zich uitdrukkelijk het recht tot gunning voor. Tussentijdse verkoop voorbehouden. Het uitbrengen van een bod betekent niet automatisch dat u in onderhandeling bent. Bij meerdere serieuze kandidaten kan verkoper besluiten tot een inschrijving.

De koopakte betreft een standaard-NVM koopovereenkomst met een aantal aanvullende artikelen, zoals:
- ouderdomsclausule (bij woningen ouder dan 20 jaar)
- asbestclausule (bij woningen van voor 1993)
- notarisclausule (maximum aan kosten voor verkoper en tijdsbepaling)
- meetclausule (aansprakelijkheid verkoper en makelaar)
- voorbehoud akkoord hypotheekbank verkoper (indien van toepassing)
- niet-bewonersclausule (indien van toepassing)
- overige clausules voor zover van toepassing.

Kaart

Kenmerken

Overdracht

Vraagprijs
€ 359.000,- k.k.
Status
Verkocht
Aanvaarding
In overleg
Aangeboden sinds
Donderdag 22 mei 2025
Laatste wijziging
Woensdag 25 juni 2025

Bouw

Type object
Eengezinswoning, woonhuis, tussenwoning
Soort bouw
Bestaande bouw
Bouwjaar
1960
Dakbedekking
Bitumen
Dakpannen
Type dak
Zadeldak
Isolatievormen
Dakisolatie
Gedeeltelijk dubbel glas
Vloerisolatie

Oppervlaktes en inhoud

Perceeloppervlakte
129 m²
Woonoppervlakte
97 m²
Inhoud
331 m³
Oppervlakte externe bergruimte
7 m²
Oppervlakte gebouwgebonden buitenruimte
4 m²

Indeling

Aantal bouwlagen
3
Aantal kamers
5 (waarvan 4 slaapkamers)

Locatie

Ligging
Aan rustige weg
In woonwijk

Tuin

Type
Achtertuin
Hoofdtuin
Ja
Oriëntering
Zuiden
Heeft een achterom
Ja
Staat
Goed onderhouden
Tuin 2 - Type
Achtertuin
Tuin 2 - Staat
Goed onderhouden
Tuin 3 - Type
Voortuin
Tuin 3 - Staat
Goed onderhouden

Energieverbruik

Energielabel
B

CV ketel

CV ketel
Nefit ProLine NxT HRC 24
Warmtebron
Gas
Bouwjaar
2015
Combiketel
Ja
Eigendom
Eigendom

Uitrusting

Warm water
CV-ketel
Verwarmingssysteem
Centrale verwarming
Houtkachel
Badkamervoorzieningen
Ligbad
Toilet
Wastafel
Wastafelmeubel
Whirlpool
Heeft een balkon
Ja
Tuin aanwezig
Ja
Heeft rolluiken
Ja
Heeft schuur/berging
Ja
Heeft een dakraam
Ja
Heeft zonwering
Ja
Heeft zonnecollectoren
Ja
Heeft ventilatie
Ja

Kadastrale gegevens

Kadastrale aanduiding
Hendrik-Ido-Ambacht E 4327
Perceeloppervlakte
129 m²
Omvang
Geheel perceel
Eigendomsituatie
Eigen grond

Brochure(s) en overige bijlagen

brochure Download